Filter resultaten

GROVE (1980) Grove Coles TM80 / 88T Grove / Coles TM 80 mobiele kraan - 80 ton - telescoopkraan - heavy duty PM2469

Reference №: PM2469

€ 55.000

Seller information

P. Mostert Import-Export B.V.

Fabriekstraat 11
4754AD Stampersgat
Netherlands

Google maps http://www.mosterttrading.com
toon telefoonnummer

Neem contact op met deze verkoper op sociale media

Specifications

Category Machines
Build year 1980
Brand GROVE
Transmission Manual
Cilindercapaciteit 14000 cc
Hp 365 HP
Fuel Diesel
TARA weight in KG 59500
Chairs 1
Doors 2
Specialities Coles TM80 / 88T Grove / Coles TM 80 mobiele kraan - 80 ton - telescoopkraan - heavy duty
Prijs € 55000

Contact

Object information

🇬🇧 Information in English:

Additional options and accessories
  • Beacon(s)
  • Cabin
  • Hydraulics
  • Power steering
  • Work lamp(s)

Remarks

General
Country of production: Verenigd Koninkrijk

Robust and reliable Grove / Coles TM 80 mobile crane , suitable for heavy lifting operations in construction, industry, and infrastructure projects . This telescopic crane is known for its strong construction, simple engineering, and reliable performance.
Ideal for hoisting and moving heavy loads on site.
✔ Grove / Coles TM 80 mobile crane✔ Lifting capacity approx. 80 tons✔ Telescopic boom up to approx. 36 meters✔ Powerful diesel engine✔ Suitable for heavy lifting✔ Robust industrial construction✔ Easy maintenance✔ Ideal for construction and industry✔ Immediately available


More information

General information
Year of manufacture: Jan 1980

Drivetrain
Drive: Wheel
Engine type: Deutz F6L413FR
Fuel tank: 300 litres

Axle configuration
Make axles: Grove
Tyre profile: 80%
Axle 1: Steering; Tyre profile left: 80%; Tyre profile right: 80%
Axle 2: Steering; Tyre profile left: 80%; Tyre profile right: 80%
Axle 3: Double wheels; Tyre profile left inner: 80%; Tyre profile left outer: 80%; Tyre profile right outer: 80%; Tyre profile right outer: 80%
Axle 4: Double wheels; Tyre profile left inner: 80%; Tyre profile left outer: 80%; Tyre profile right outer: 80%; Tyre profile right outer: 80%
Axle 5: Double wheels; Tyre profile left inner: 80%; Tyre profile left outer: 80%; Tyre profile right outer: 80%; Tyre profile right outer: 80%

Measures
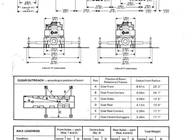
Dimensions (LxBxH): 1529 x 300 x 380 cm

Functional
Lifting capacity: 58.000 kg
Lift height: 630 cm
Working height: 4.200 cm
Maximum reach: 3.600 cm

Condition
General condition: good
Technical condition: good
Visual appearance: good
Number of keys: 1

Financial information
VAT: The price shown is excluding VAT



🇳🇱 Informatie in het Nederlands:

Aanvullende opties en accessoires
  • Cabine
  • Hydrauliek
  • Stuurbekrachtiging
  • Werklamp(en)
  • Zwaailamp(en)

Bijzonderheden

Algemeen
Land van productie: Verenigd Koninkrijk

Robuuste en betrouwbare Grove / Coles TM 80 mobiele kraan, geschikt voor zware hijswerkzaamheden in bouw, industrie en infrastructuurprojecten. Deze telescoopkraan staat bekend om zijn sterke constructie, eenvoudige techniek en betrouwbare prestaties.
Ideaal voor het hijsen en verplaatsen van zware lasten op locatie.
✔ Grove / Coles TM 80 mobiele kraan✔ Hijscapaciteit ca. 80 ton✔ Telescoopgiek tot ca. 36 meter✔ Sterke dieselmotor✔ Geschikt voor zwaar hijswerk✔ Robuuste industriële bouw✔ Eenvoudig onderhoud✔ Ideaal voor bouw en industrie✔ Direct inzetbaar


Meer informatie

Algemene informatie
Bouwjaar: jan. 1980

Aandrijving
Aandrijving: Wiel
Motor type: Deutz F6L413FR
Tankinhoud: 300 liter

Asconfiguratie
Merk assen: Grove
Bandenprofiel: 80%
As 1: Meesturend; Bandenprofiel links: 80%; Bandenprofiel rechts: 80%
As 2: Meesturend; Bandenprofiel links: 80%; Bandenprofiel rechts: 80%
As 3: Dubbellucht; Bandenprofiel linksbinnen: 80%; Bandenprofiel linksbuiten: 80%; Bandenprofiel rechtsbinnen: 80%; Bandenprofiel rechtsbuiten: 80%
As 4: Dubbellucht; Bandenprofiel linksbinnen: 80%; Bandenprofiel linksbuiten: 80%; Bandenprofiel rechtsbinnen: 80%; Bandenprofiel rechtsbuiten: 80%
As 5: Dubbellucht; Bandenprofiel linksbinnen: 80%; Bandenprofiel linksbuiten: 80%; Bandenprofiel rechtsbinnen: 80%; Bandenprofiel rechtsbuiten: 80%

Maten
Afmetingen (LxBxH): 1529 x 300 x 380 cm

Functioneel
Hefcapaciteit: 58.000 kg
Hefhoogte: 630 cm
Werkhoogte: 4.200 cm
Maximale reikwijdte: 3.600 cm

Staat
Algemene staat: goed
Technische staat: goed
Optische staat: goed
Aantal sleutels: 1

Financiële informatie
BTW: De getoonde prijs is exclusief BTW



🇫🇷 Informations en Français:

Plus d'options et d'accessoires
  • Balise(s)
  • Cabine
  • Direction assistée
  • Hydraulique
  • Lampe(s) de travail

Remarques

Général
Pays de production: Verenigd Koninkrijk

Grue mobile Grove/Coles TM 80 : robuste et fiable, elle est idéale pour les opérations de levage de charges lourdes dans les secteurs de la construction, de l’industrie et des infrastructures . Cette grue télescopique est reconnue pour sa construction solide, sa conception simple et ses performances fiables.
Idéal pour le levage et le déplacement de charges lourdes sur chantier.
✔ Grue mobile Grove / Coles TM 80✔ Capacité de levage d'environ 80 tonnes✔ Flèche télescopique jusqu'à environ 36 mètres✔ Moteur diesel puissant✔ Convient pour soulever des charges lourdes✔ Construction industrielle robuste✔ Entretien facile✔ Idéal pour la construction et l'industrie✔ Disponible immédiatement


Plus d'informations

Informations générales
Année de construction: janv. 1980

Transmission
Commande: Roue
Type de moteur: Deutz F6L413FR
Réservoir de carburant: 300 litres

Configuration essieu
Marque essieux: Grove
Sculptures des pneus: 80%
Essieu 1: Direction; Sculptures des pneus gauche: 80%; Sculptures des pneus droite: 80%
Essieu 2: Direction; Sculptures des pneus gauche: 80%; Sculptures des pneus droite: 80%
Essieu 3: Roues jumelées; Sculptures des pneus gauche interne: 80%; Sculptures des pneus gauche externe: 80%; Sculptures des pneus droit externe: 80%; Sculptures des pneus droit externe: 80%
Essieu 4: Roues jumelées; Sculptures des pneus gauche interne: 80%; Sculptures des pneus gauche externe: 80%; Sculptures des pneus droit externe: 80%; Sculptures des pneus droit externe: 80%
Essieu 5: Roues jumelées; Sculptures des pneus gauche interne: 80%; Sculptures des pneus gauche externe: 80%; Sculptures des pneus droit externe: 80%; Sculptures des pneus droit externe: 80%

Mesures
Dimensions (LxlxH): 1529 x 300 x 380 cm

Pratique
Capacité de levage: 58.000 kg
Hauteur de levage: 630 cm
Hauteur de travail: 4.200 cm
Portée maximale: 3.600 cm

Condition
État général: bon
État technique: bon
État optique: bon
Nombre de clés: 1

Informations financières
TVA: Le prix indiqué ne comprend pas la TVA



🇩🇪 Informationen auf Deutsch:

Weitere Optionen und Zubehör
  • Arbeitslampe(n)
  • Hydraulik
  • Kabine
  • Servolenkung
  • Signalfeuer

Anmerkungen

Allgemein
Produktionsland: Verenigd Koninkrijk

Der robuste und zuverlässige Mobilkran Grove/Coles TM 80 eignet sich ideal für Schwerlasthebearbeiten im Bauwesen, in der Industrie und bei Infrastrukturprojekten . Dieser Teleskopkran zeichnet sich durch seine stabile Konstruktion, einfache Technik und zuverlässige Leistung aus.
Ideal zum Heben und Bewegen schwerer Lasten auf der Baustelle.
✔ Grove / Coles TM 80 Mobilkran✔ Tragfähigkeit ca. 80 Tonnen✔ Teleskopausleger bis zu ca. 36 Meter✔ Leistungsstarker Dieselmotor✔ Geeignet für schwere Hebearbeiten✔ Robuste Industriekonstruktion✔ Einfache Wartung✔ Ideal für Bauwesen und Industrie✔ Sofort verfügbar


Weitere Informationen

Allgemeine Informationen
Baujahr: Jan. 1980

Antriebsstrang
Antrieb: Rad
Motortyp: Deutz F6L413FR
Kraftstofftank: 300 Liter

Achskonfiguration
Marke Achsen: Grove
Reifen Profil: 80%
Achse 1: Gelenkt; Reifen Profil links: 80%; Reifen Profil rechts: 80%
Achse 2: Gelenkt; Reifen Profil links: 80%; Reifen Profil rechts: 80%
Achse 3: Doppelbereift; Reifen Profil links innnerhalb: 80%; Reifen Profil links außen: 80%; Reifen Profil rechts innerhalb: 80%; Reifen Profil rechts außen: 80%
Achse 4: Doppelbereift; Reifen Profil links innnerhalb: 80%; Reifen Profil links außen: 80%; Reifen Profil rechts innerhalb: 80%; Reifen Profil rechts außen: 80%
Achse 5: Doppelbereift; Reifen Profil links innnerhalb: 80%; Reifen Profil links außen: 80%; Reifen Profil rechts innerhalb: 80%; Reifen Profil rechts außen: 80%

Maße
Abmessungen (L x B x H): 1529 x 300 x 380 cm

Funktionell
Hubkapazität: 58.000 kg
Hubhöhe: 630 cm
Arbeitshöhe: 4.200 cm
Maximale Reichweite: 3.600 cm

Zustand
Allgemeiner Zustand: gut
Technischer Zustand: gut
Optischer Zustand: gut
Anzahl der Schlüssel: 1

Finanzielle Informationen
MwSt.: Der angezeigte Preis versteht sich ohne MwSt.

Meer van dezelfde verkoper